Neubau eines Wohnhauses
 Wohnfläche: 252 m²
                        Grundstücksgröße: 1.139 m²
                        Auftraggeber: Privat
                        Vergabe: Direkt
                        Planung/Ausführung: 2016 - 2017
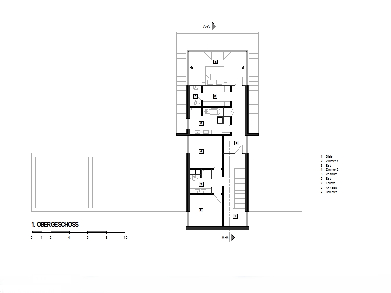
Auf einem 1.139 m² großen Eckgrundstück entstand für ein Ehepaar mit zwei Töchtern ein individuelles Wohnhaus auf 252 m² Wohnfläche. Zwei sich kreuzende Riegel bilden die Grundstruktur und Kubatur des Hauses. Die Schnittstelle nimmt die horizontale und vertikale Erschließung auf.
Der Mittelpunkt des Erdgeschosses und die Basis des Hauses ist das dreiseitig verglaste Wohnzimmer mit einem betoniertem, offenen Kamim im Zentrum. Über einen dreistufigen Split-Level erreichbar schließt sich das offene Esszimmer an. Unmittelbar angegliedert sind die Küche und ein separates Fernsehzimmer. Das Obergeschoss nimmt die Schlafräume auf. Der Elternbereich ist als in sich geschlosser Bereich konzipiert mit Schlafzimmer, En Suite Badezimmer und Ankleide mit umfangreichem Stauraum. Die Kinderzimmer erhielten ein eigenes Kinderbad.



